Former Twickenham yoga studio could be converted into six new flats
By Cesar Medina 11th Nov 2025
By Cesar Medina 11th Nov 2025
An application has been submitted to turn vacant units into six flats in the heart of Twickenham.
Proposals have been put forward to convert a former yoga studio into six new flats of various sizes on top of Specsavers at 16–18 London Road.
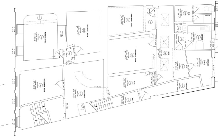
On behalf of Mr Wheelhouse, JB Architectural Design Studio says in its design and access statement that the upper floors of the building are empty in what used to be the Yoga Bar.

JB Architectural Design Studio explained: "Over the past decade, multiple tenants have failed to establish sustainable businesses, with repeated patterns of declining revenue, vacancy periods, and arrears.
"The most recent tenant was formally evicted due to prolonged non-payment of rent, leaving the upper floors vacant since early 2023."

A pre-application to Richmond Council confirmed that a conversion from the applicant would be acceptable if:
- The loss of commercial use is justified,
- There is a reduction in proposed units from seven to six to improve internal layout and daylighting, and
- The rear dormer infill is reduced in size.
JB Architectural Design Studio added: "This proposal therefore represents a logical and sustainable reuse, securing the building's future through sensitive adaptation while contributing six much-needed homes within a sustainable and sought-after town-centre location."

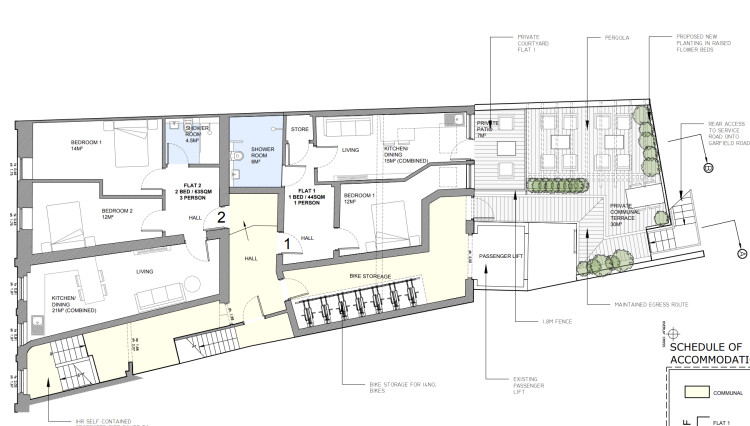
The plans aim to create three one-bedroom flats, two two-bedroom flats, and one studio.
Private amenity space would be provided in the form of rear terraces, courtyards, and balconies, with additional soft planting and screening introduced across the rear elevation to "enhance outlook," the applicant says.

The front of the building facing London Road will remain unchanged, with only minor fabric repairs to be carried out using matching brick and mortar.
To read the full application, click here.
READ MORE: Discover the best Christmas events happening in Twickenham.
We want to provide Twickenham with more and more clickbait-free local news. To do that, we need a loyal newsletter following. Help us survive and sign up for our free weekly newsletter by clicking the link HERE.
CHECK OUT OUR Jobs Section HERE!
twickenham vacancies updated hourly!
Click here to see more: twickenham jobs
Share: