A new chicken shop could be coming to an old bank site in Twickenham
By Cesar Medina 14th Oct 2025
By Cesar Medina 14th Oct 2025

A planning application has been submitted for a new chicken shop in the heart of Twickenham.
Proposals for a restaurant at part of the former HSBC Bank site on London Road have been put forward by Flavours of Opulance, from Mr Armon Singh Arora.
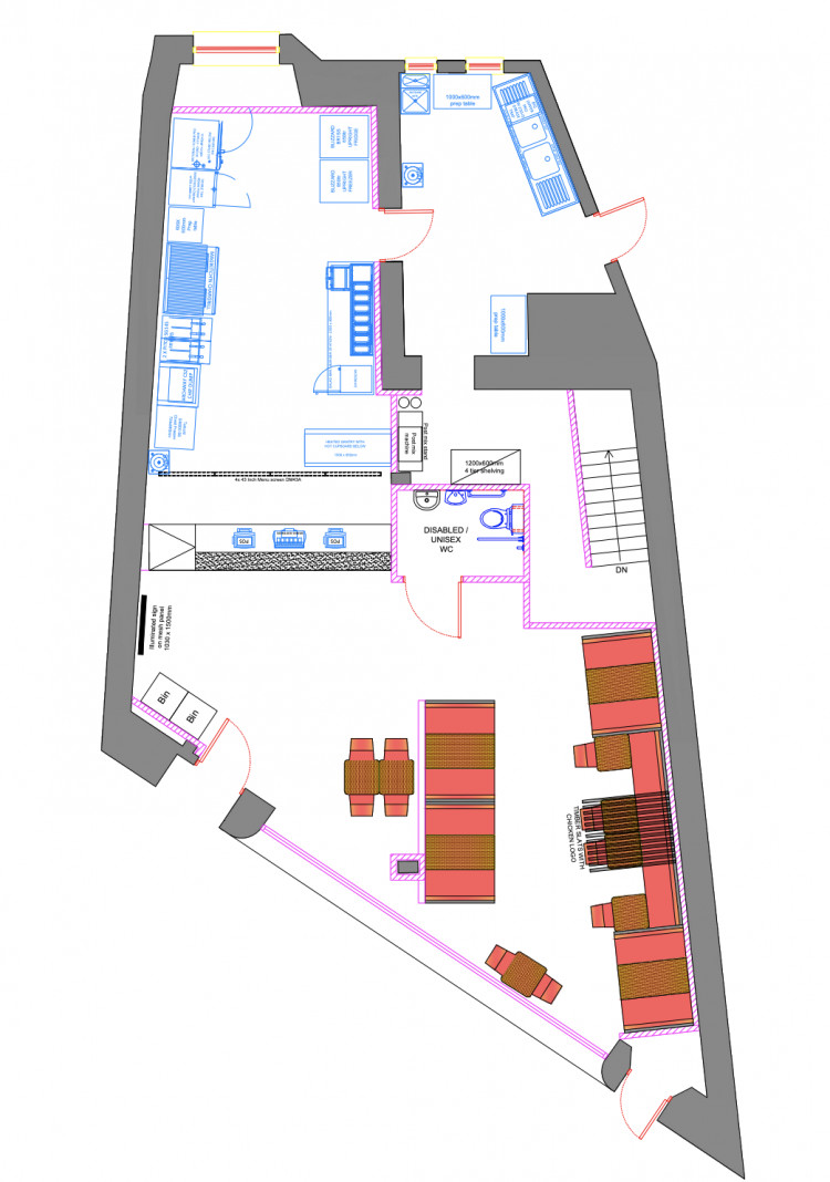
Although planning documents do not reveal the name or logo of the eatery, they do show elevations for a seating area on the ground floor and a kitchen fitted with fryers, a grill, and a salad/burger station.

The shop also proposes to operate from Monday to Sunday, 11am – 2am.
In its heritage statement on behalf of Flavours of Opulance, Nasa Studios said: "The proposal involves the installation of low-level extraction to the rear and a new shopfront.
"The existing shopfront is currently an aluminium frame finished in white with marble tiles; the upper floors follow the same style as the whole parade, with stone window surrounds and brickwork. The proposal does not affect this."

"The proposed shopfront will also be an aluminium frame, powder-coated RAL 3003, and the marble tiles will be retained.
"The proposed extraction to the rear will be taken out through an existing window opening and existing vent, therefore removing the need to create additional penetrations."

Marketed by Stirling Shaw, the lease of the site is available for rent at £65,000 per annum or for sale at £850,000.
If approved, work to refit the site is expected to begin in December 2025 and finish by February 2026.
To read the full planning application, click here.
READ MORE: Twickenham MP named Patron of children's mental health charity.
We want to provide Twickenham with more and more clickbait-free local news. To do that, we need a loyal newsletter following. Help us survive and sign up for our free weekly newsletter by clicking the link HERE.
CHECK OUT OUR Jobs Section HERE!
twickenham vacancies updated hourly!
Click here to see more: twickenham jobs
Share: